Открытая АС на динамиках 4ГД (4ГДШ)

По хорошему дать шум на пару динамиков и сближать их до изменения характера шума. На АЧХ также будут изменения, недобрые. После чего растащить динамики до прежнего звука. В образованном промежутке поместить пищалку.
Есть соображения как это реализовать на макете. Рис. 1 верхний ШП динамик оставляю закрепленным, вместо нижнего вырезаю отверстие большого диаметра, ШП динамик цепляю на картонную шайбу, в диаметре больше, чем вырезанное отверстие. Это позволит перемещать нижний дин туда-сюда, не разбирая конструкцию.

Я проделывал такой финт просто держа в руках пару динов, соединенных вместе и с шумом на выходе усилителя. Очень наглядно слышно. И если разворачивать дины осями в стороны, то сблизить можно сильнее.
Александр Сергеевич, эксперимент показывает, что оптимальное расстояние между ШП динами около 80-100 мм, если сближать дальше, то начинает меняться тональность, как будто усиливается интенсивность водопада, не знаю как объяснить. Так и должно быть? Если все так, то вот эти размеры верны:

2025-09-28-17-07-34-479.jpg


ПС: кошке не очень понравилось розовое. _hm_
 
Наверное можно и на столе? Под динамики салфетки и "раскатывай" их туда-сюда. И конкретные расстояния измерить проще.
Я пробовал на полу, тоже слышно. Но показалось, что в руках более отчетливо слышно что ли, но нужен помощник с линейкой.
 
Последнее редактирование:
Александр Сергеевич, эксперимент показывает, что оптимальное расстояние между ШП динами около 80-100 мм, если сближать дальше, то начинает меняться тональность, как будто усиливается интенсивность водопада, не знаю как объяснить. Так и должно быть? Если все так, то вот эти размеры верны:

Посмотреть вложение 153205

ПС: кошке не очень понравилось розовое. _hm_
"И простите дурака! " – сказал слоник 🐘 у окна, но такие эксперименты тянут на присуждение премии Нобеля в области звуковой акустики Вам и Вашей кошке 🐧.
И потом, 500 (мл) заметно больше, чем 400. Кошка и я единогласно голосуем за 500 (мл).
 
Если предельно кратко, то размеры открытки привязаны прежде всего к добротности и резонансу динамика. Формулы и графики есть в книжке Иофе Бытовые акустические системы. Остальное кто во что горазд.
 
Если предельно кратко, то размеры открытки привязаны прежде всего к добротности и резонансу динамика. Формулы и графики есть в книжке Иофе Бытовые акустические системы. Остальное кто во что горазд.
Добавлю сюда, чтоб не потерять:

Тут хозяин – барин. Панели 60х65 см весьма тяжеловаты. Это если постоянно перетаскивать, а если просто поставить и оставить, то норм. Широкий звук берёт начало от широких панелей (не в смысле направленности)
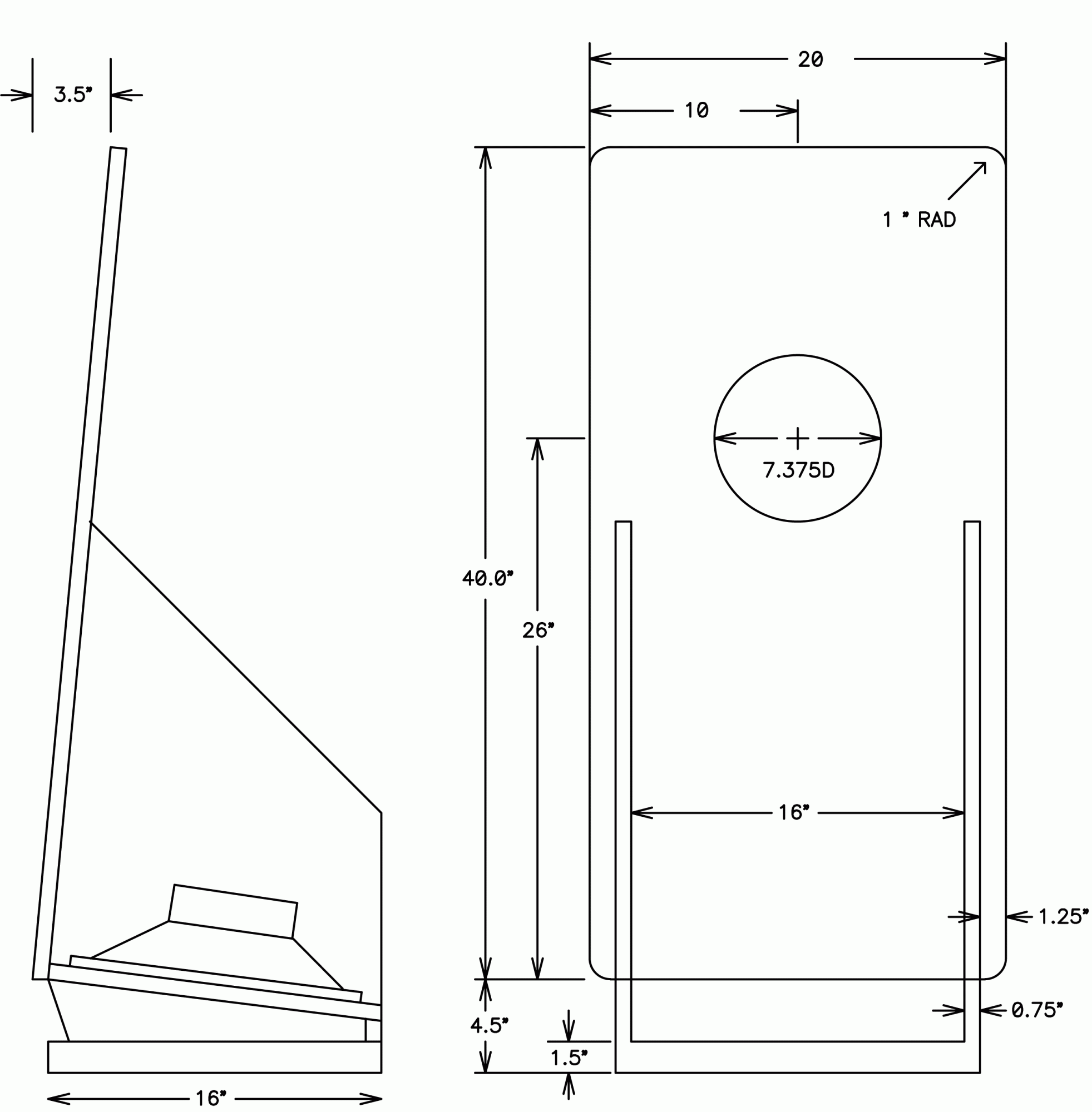
Вечная борьба за место... В неравной схватке с домашними отбил себе одну стену для размещения аудиотехники, теперь пытаюсь найти компромис.
Как Вы считаете, при ширине щитов 600 мм, какое допустимое минимальное расстояние между ними?
 
Последнее редактирование модератором:
Для многополоски подойдет по отдаче 3ГДШ-1 или новые варианты.

при ширине щитов 600 мм, какое допустимое минимальное расстояние между ними?
Требования к стереобазе- как для любых АС (да с подворотом))).
Когда обдумывал возможности применения, пришёл к аналогу "мольберта". Раскрыл, отодвинул от стены, послушал, сложил, придвинул...
Попробуйте ЗПМ позади щита - должно помочь на СЧ.
 
Последнее редактирование:
Требования к стереобазе- как для любых АС (да с подворотом))).
Когда обдумывал возможности применения, пришёл к аналогу "мольберта". Раскрыл, отодвинул от стены, послушал, сложил, придвинул...
Попробуйте ЗПМ позади щита - должно помочь на СЧ.
Я тоже решил отодвигать при прослушивании, по другому никак, занимать пол комнаты - непозволительная роскошь. Еще идея сделать регулируемый наклон. После прослушивания убрал подпорки и придвинул максимально к стене. Еще и нахлобучку на морду нужно, домашний зверек хоть и благородных кровей, но есть опасения, что может проявить интерес к данной АС и ненароком поточить когти об диффузоры. 4ГД-35 пока еще добываются, а вот такой пищик уже не найду.
 
Вечная борьба за место... В неравной схватке с домашними отбил себе одну стену для размещения аудиотехники, теперь пытаюсь найти компромис.
Как Вы считаете, при ширине щитов 600 мм, какое допустимое минимальное расстояние между ними?
Вроде такой волшебной формулы я не знаю, но мои АС (ЗЯ, ширина панелей 400 мм ) на полтора метра отстоят. Если шире, то мешают, как штаны пл0хому танцору. Шире уже не получается. Ширина щитов напрямую со стерео базой в явном виде не коррелирует, но может я и ошибаюсь 😁
 
Последнее редактирование:
Подскажите, если не сложно, пару композиций для проверки на ух.
Зачастую для оценки оя, щитка, да и просто ширика и даже наухов включаю ото, шо в прицепе (невзирая, что мп3)
Серёдка вылезла в ухи, нэчи/вэчи нету, голоса-инстрУменты не те – забавляемся с настройкой дальше или фтопку.
Цимес в том, что там спектр ровный и своеобразный (таких сейчас почти не делают)
Знімок екрана 2025-09-29 о 19.11.48.png

*) Для серьёзной "музыки" – совсем другая музыка.

Modern_CD (с пояснениями, как оно дОлжно) и Dali_Stereo_Demonstration_CD
Забавляйтесь;)
 

Вложения

Последнее редактирование:
Таки к ней нужно ж и соответствующий виселитель. У меня все гораздо скромнее, я доволен и мне хватит, вот только со щитом разберусь. _hm_
Подскажите, если не сложно, пару композиций для проверки на ух.
Будет ровная АЧХ и сбалансированный звук- любая песня станет проверочной.
 
Modern_CD и Dali_Stereo_Demonstration_CD нужны?
Андрей Палыч, скиньте, если не сложно.
Зачастую для оценки оя, щитка, да и просто ширика и даже наухов включаю ото, шо в прицепе (невзирая, что мп3)
Серёдка вылезла в ухи, нэчи/вэчи нету, голоса-инстрУменты не те – забавляемся с настройкой дальше или фтопку.
Цимес в том, что там спектр ровный и своеобразный (таких сейчас почти не делают)
320 вполне достаточно. +like
 
Последнее редактирование:
Щас фото скину, как должна выглядеть хаендовская открытка https://www.salonav.com/arch/2016/05/otkrytaya-akustika.htm
Вот опять четвёрка резвых!
И это правильно. Только щит надо раз в 10 побольше... _hm_
И почему никто не ставит щит (хотя бы басовый) в угол?
лучше один большой Нч чем 4ре маленьких
Хуже. Проверено не раз. Только маленькие НЧ с низкой резонансной - это проблема.
 
Хуже. Проверено не раз. Только маленькие НЧ с низкой резонансной - это проблема.
маленькие имеют выше резонанс но и бОльшие искажения,маленькие надо на сч от 300гц
хотя если подобрать маленькие с разбросом резонансов 5...10гц то может быть и лучше,но это только совдеп,буржуйские динамики имеют малый разброс
 
Вот опять четвёрка резвых!
И это правильно. Только щит надо раз в 10 побольше... _hm_
И почему никто не ставит щит (хотя бы басовый) в угол?

Хуже. Проверено не раз. Только маленькие НЧ с низкой резонансной - это проблема.
Басовый щит в углу попросит настройки под углы. И в другом месте не споет как надо.
 
Можно сделать новые щиты поменьше и туды те Ямахи приклеить. Звук весомее будет.
Таки АС в рояльном лаке... Не не, у меня комплект с усилителем и CD-проигрывателем, поет замечательно, лезть туда точно не буду. На музыке потяжелее немного не хватает НЧ звена, но это поправимо, да и слушаю я такое редко. Но вот на живой музыке и на вокале щиты переигрывают, даже на картоне, правда с лампой. Как услышал, так и нет покоя.
 
Басовый щит в углу попросит настройки под углы.
Попросит! Ещё как! _hm_
Но меня достаёт постоянное нытьё про отсутствие баса в ОО.
Сказано ведь в акустической библии: наилучшее оформление для динамика - бесконечный экран.
А создать неискажённое звуковое давление внизу можно токмо площадью.
Помните Вашу мечту - врезать в стену пару 6ГД-2 и забыть про добычу басов?
Понятно, что в наших маленьких квартирках не разгуляешься. Но хотя бы взять 4 х 10" в вертикальном щите под потолок и придвинуть к стене?
 
Насчет этого фото, щиты под неким наклоном назад, или кажется? И спереди небольшой бортик под гриль, он допустим в такой конструкции? Вроде получается небольшая труба.

Безымянный.png
 
Насчет этого фото, щиты под неким наклоном назад, или кажется? И спереди небольшой бортик под гриль, он допустим в такой конструкции? Вроде получается небольшая труба.

Посмотреть вложение 153318
Невысокие колонки сыграют верха вам в пупок, а не в обеи ухи, поэтому делается заклон их назад, а еще может быть наклон акустической оси вниз, значит, наклоняем колонки снова кзади. Бортики далеко от средника и пищалы, не влияют.
 
У Н.Пасса есть SLOB
Идея использовать пол как экран, вообщем то не нова.
Но и в этом случае интерференция от излучения тыльной стороны динамика делает своё паскудное дело. ;)
И заметили, что АЧХ опять нет?
 
Идея использовать пол как экран, вообщем то не нова.
Но и в этом случае интерференция от излучения тыльной стороны динамика делает своё паскудное дело. ;)
И заметили, что АЧХ опять нет?
У них форум с 2016 года, обсуждали целых 31 стр., вылаживали какие-то графики.
Вот у меня вопрос, чем эта конструкция лучше отдельно стоящего НЧ ящика?

OB SPKR.gif
 
чем эта конструкция лучше отдельно стоящего НЧ ящика?
Отвечу по удифильски:
Тот кто слышал настоящий бас (от 25 по -3) в ОО, никогда не вернётся к ящикам... _hm_
На самом деле геморроя с ОО на басу гораздо больше чем с ящиками.
вылаживали какие-то графики.
Как и следовало ожидать, там с трудом вытягивают 40 Гц по -3.
 
Тот кто слышал настоящий бас (от 25 по -3) в ОО, никогда не вернётся к ящикам... _hm_
щит 2,5*1,5м для такого баса надо,так что ЗЯ рулит,а эта этажерочка -понты для приезжих,нч не больше чем на щите таких же размеров(площадь),просто сч давит за счет щели
откуда там 25гц возьмутся? физику не обманешь
 
Последнее редактирование:

Статистика форума

Темы
3,314
Сообщения
264,514
Пользователи
2,550
Новый пользователь
Александр Н.
Назад
Сверху Снизу