Постройка басовой секции

  • Автор темы Автор темы Пётр
  • Дата начала Дата начала
Александр Бокарёв был у меня в гостях. Раз он говорит - что "акустическая обстановка"... значит так и есть. Думаю.
Но всё же - готов ещё помучаться с фильтрами. С Вашей, Николай, помощью. Вдруг чего получится.
А то что предлагает Александр - как крайняя мера. Да собственно - так и слушал. Да собственно - так и понравилось наиболее (без шунтирующего катушку резистора). И было пофигу на "верблюда". Понимаю, что всё это - антиморально. Поэтому и готов - поискать такую схему - чтобы и АЧХ соответствовала бы хоть отчасти нормам общечеловеческим. Но и звук при этом - не перестал бы нравиться. Тогда бы внутренняя совесть с реакцией ушей - обрели бы какой-то консенсус.
Как же Вы его развернёте, если по комнате хОдите?
А в пол его можно направить?
 
А в пол его можно направить?
Щит положить на пол или к потолку прибить? ))) Вы определили, что более-менее норм - 45°, дин смотрит чуть в сторону или прямо на Вас. О непотребности двух разнесённых источников СЧ уже писАл. Вот что получилось сегодня. увеличил отрыв уровня СЧ от НЧ, особенно выше 2 кГц, где НЧ задирает АЧХ вверх. Полка СЧ уменьшена на 3дб, полка ВЧ (10 кГц) - тоже.
1.png

2.png - даже лучше, чем я думал, минимум 5,5 Ома. Недостаток варианта очевиден: СЧ пашет от 120 Гц по уровню -6дБ от полки. Правда, мощность СЧ-шника при этом таки смешная. Схемус:
3.png
Включение 680 мкГн в цепь и СЧ, и НЧ - находка, возьмите себе на вооружение, любители последовательных фильтров. ФВЧ принципиально другой - гораздо более плавный. Я сохранил уровень 20 кГц, 10 кГц снял на 3дБ, 4 кГц - не тронул. Если оно состыкуется с СЧ, будет вери гуд.
 
Последнее редактирование:
Возникли вопросы по комнате
3.png - мы мучим сейчас канал №2, правильно? А как (хотя бы теоретически) станет НЧ щит в канале 1?
Вы слушаете с открытыми дверями или с закрытыми?
Вы слушаете и по середине ширины комнаты, и на диване, и везде? И вблизи АС - тоже?
Основные резонансные частоты 31 и 49 Гц, я обозвал их 32 и 50 Гц, так и буду дальше называть. Рисую картину стоячих волн.
 
Возникли вопросы по комнате
Посмотреть вложение 83628 - мы мучим сейчас канал №2, правильно? А как (хотя бы теоретически) станет НЧ щит в канале 1?
Да, мучаем канал №2. Как встанет щит в канале №1 - вообще не представляю. Я об этом даже и не думал ещё.
Вы слушаете с открытыми дверями или с закрытыми?
Вы слушаете и по середине ширины комнаты, и на диване, и везде? И вблизи АС - тоже?
Основные резонансные частоты 31 и 49 Гц, я обозвал их 32 и 50 Гц, так и буду дальше называть. Рисую картину стоячих волн.
Слушаю - и с открытыми дверями и с закрытыми. Когда дома никого нет - двери закрываю. Мне больше нравится звучание. Когда кто-то дома - двери бесполезно закрывать. Их всё равно открывают.
Слушаю - и посередине и на диване и везде. И вблизи АС (но это не слушание, это вынужденное пребывание там, при работающей музыке).

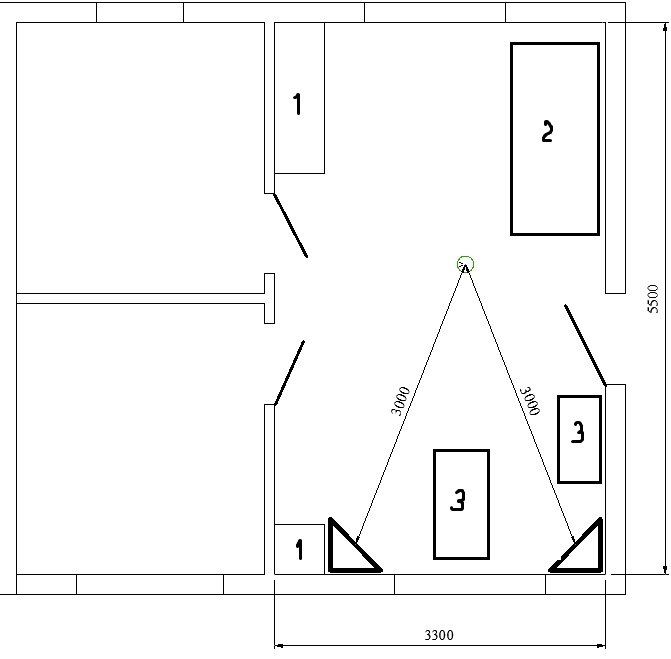
Раз Вы, Николай настолько прониклись, вот более информативно по расположению:
1.jpg

1 - шкаф
2 - диван
3 - стол

Акустические системы в комнате - не пользуются привелегией. Скорее - наоборот. Мне лишь всё время говорят: "а нельзя их было сделать поменьше?"
И постоянно вижу немой вопрос в глазах тёщи, когда она приходит в гости и бросает взгляд на АС. В её глазах я читаю - образ человека, крутящего пальцем у виска.
 
Картина стоячих волн. Там, где максимум - стоячая суммируется в фазе с прямой, пик АЧХ. Где минимум - есть только прямая волна, стоячая самоубилась, на АЧХ - провал или ровно. Более высокие порядки резонансов рисуются так же, но я не вижу пиков 90,120,150 Гц, и - прекрасно. Поскольку у Вас классическое "возбуждение с конца трубы" , никаких фокусов не предвидится.
1.png

Если АС стоит на линии максимума какой-то частоты, то она максимально сильно возбуждает стоячую волну этой частоты. Если АС стоит на линии минимума - стоячая волна на этой частоте НЕ возникает.
Например, сабвуфер типа ЗЯ, поставленный посередине стенки 3,5 м, не возбудит стоячую волну 50 Гц, но максимально сильно возбудит 100 Гц, и расчетная разница уровней 50/100 Гц по вине комнаты ожидается -20дБ!
Со щитами сложнее, поскольку у них есть направленность на НЧ типа восьмёрки, где ноль давления - вдоль плоскости щита.
2.png

Но смысл со щитом или на щите - тот же, а вот в чём отличия.
Вариант №1 - щит смотрит вдоль, ДН - максимум вдоль, минимум - поперёк комнаты.
3.png
Стоячки 30 и 60 Гц - максимальны, 50 и 100 Гц - не возбуждаются (теоретически).
Вариант №2: щит смотрит поперёк.
5.png
Стоячки 30 и 60 Гц - не возбуждаются, 50 и 100 Гц - максимальны (теория).
Вариант №3: щит под 45°.
6.png
Все стоячки (осевые) возбуждаются вполсилы.
Стоячая волна по вертикали в Вашем случае ослаблена вдвое относительно ЗЯ, поскольку сверху щита давление компенсируется, а снизу - нет, и снизу пойдёт отражение с силой -6дБ от того, что было бы от ЗЯ. На АЧХ не видно частот резонансов комнаты, отличных от 30; 50; 60; 100 и вроде 110/120 Гц, считаем, что по вертикали - чисто.
Таким образом, если не хотите слушать 100 Гц посередине комнаты, разворачивайте щиты вдоль и миритесь с 60 Гц (30 будут слабы, щит их срезАет). Или - сместите щиты на 1/5 ширины от стен, излучатели попадут в точку возле минимума 100 Гц (не нарисовал; по аналогии с 60мин), но они получаются далеко от стен. Или сместите АС №1 ещё дальше от угла, и сами слушайте дальше от середины комнаты, где нет максимума 100 Гц.
 
Последнее редактирование:
Спасибо, Николай. Интересная теория.
От себя могу добавить, что при первом в этот раз прослушивании 6ГД-1 в щите - расположил щит примерно в этой точке:
1.jpg

и остался недоволен "несерьёзным детским садом" в звучании.
По-моему, сходится: минимум 50 Гц, минимум 60 Гц и максимум 100 Гц.
Это, если я правильно понял теорию.
При перемещении щита ближе к углу - басы появились.
 
Да, мучаем канал №2. Как встанет щит в канале №1 - вообще не представляю. Я об этом даже и не думал ещё.

Слушаю - и с открытыми дверями и с закрытыми. Когда дома никого нет - двери закрываю. Мне больше нравится звучание. Когда кто-то дома - двери бесполезно закрывать. Их всё равно открывают.
Слушаю - и посередине и на диване и везде. И вблизи АС (но это не слушание, это вынужденное пребывание там, при работающей музыке).

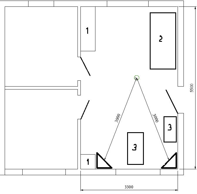
Раз Вы, Николай настолько прониклись, вот более информативно по расположению:
Посмотреть вложение 83629
1 - шкаф
2 - диван
3 - стол

Акустические системы в комнате - не пользуются привелегией. Скорее - наоборот. Мне лишь всё время говорят: "а нельзя их было сделать поменьше?"
И постоянно вижу немой вопрос в глазах тёщи, когда она приходит в гости и бросает взгляд на АС. В её глазах я читаю - образ человека, крутящего пальцем у виска.
Вроде бы и неплохая комната 5.5 х 3.3 = 18 м2, но расположение дверей..!!!, даже слова не подобрать..
Вообще непонятно, где здесь что можно поставить и в каком месте музыку слушать. На чем слушатель сидит тоже непонятно. При прослушивании в середине комнаты туда выкатывается кресло? Но это же на проходе..
Планировка очень неудобная. А какова высота комнаты? 2,8 м или 2.5 м?
И это в доме, который Пётр построил сам для себя.
Можно было бы предусмотреть более удобное помещение для прослушивания. Так кажется со стороны, когда не знаешь подробностей.
Причём КДП не обязательно должна быть большой, можно меньше, но удобнее.

Добавлю. Написал это не для того чтобы комнату поругать, а для того, чтобы мудрейшие предложили лучшие варианты размещения здесь аудиоаппаратуры и места прослушивания. Конечно, если Петина жена согласится с предложением.
 
Последнее редактирование:
Собрал схему:
1.jpg

Сделал замеры. Микрофон - 2 м по оси динамиков, 1,5 м от пола. При замере пополосно - вместо НЧ и СЧ динамиков - подпаивал указанные резисторы. Холодильник отключил. Результаты:
1.png
 
Дай 100 герц спектрой и по комнате походи, послушай где гудит, а где молчит. А то вечно будешь всем шиш 100-герцовый показывать)))
 
По совету Александра - дал с генератора Спектралаба 100 Гц - и ухом поводил по комнате. Нашёл место возле микрофона, где на слух гудение меньше (место оказалось рядом - полметра дальше/вбок). Результат в новом месте (красным) по сравнению с предыдущим (синим). Уровни не менялись:
2.png
 
Собрал схему:
Посмотреть вложение 83674
Сделал замеры. Микрофон - 2 м по оси динамиков, 1,5 м от пола. При замере пополосно - вместо НЧ и СЧ динамиков - подпаивал указанные резисторы. Холодильник отключил. Результаты:
Посмотреть вложение 83676
Нормально. Скат в сторону ВЧ появился, яма 3,5 кГц не засыпалась, мидбас превалирует над басом, НЧ отстал по уровню от СЧ выше 1 кГц.
Что делаем. Покрутите щит вокруг оси - на посмотреть возможности регулирования АЧХ данным способом. Только суммарную АЧХ, 3-4 угла.
Вероятно, увеличим 3мГн. Есть железо? Или - добавлю в схему катушку для СЧ меньшего номинала (что есть?)
По совету Александра - дал с генератора Спектралаба 100 Гц - и ухом поводил по комнате. Нашёл место возле микрофона, где на слух гудение меньше (место оказалось рядом - полметра дальше/вбок). Результат в новом месте (красным) по сравнению с предыдущим (синим). Уровни не менялись:
Посмотреть вложение 83678
Прекрасно, разменяли 100 на 50. Баланс в данной точке здоровее на голову. Теперь крутите щит, в старой и новой точке )))
 
Теперь крутите щит, в старой и новой точке )))
Не знаю, будет ли видно то, что надо увидеть...
В точке где торчит 100 Гц:
1.png

в точке, где 100 Гц не торчит:
2.png

зелёным цветом - щит параллельно короткой стены (ось динамика параллельна длинной стене)
синим, малиновым, красным - последовательное вращение щита против часовой стрелки (если смотреть сверху), примерно на 7 градусов каждый раз
Вероятно, увеличим 3мГн. Есть железо? Или - добавлю в схему катушку для СЧ меньшего номинала (что есть?)
Железо есть, конечно. Со второго канала - есть катушка 0,27 мГн
 
Не знаю, будет ли видно то, что надо увидеть...
В точке где торчит 100 Гц:
Посмотреть вложение 83679
в точке, где 100 Гц не торчит:
Посмотреть вложение 83680
зелёным цветом - щит параллельно короткой стены (ось динамика параллельна длинной стене)
синим, малиновым, красным - последовательное вращение щита против часовой стрелки (если смотреть сверху), примерно на 7 градусов каждый раз
Афиногительно! Прям лабораторная работа - перекачивание мощности стоячих волн из одной частоты в другую. Правда, я думал, что Вы снимете углы 90-70-45-20-0, но сие тоже подвигает на мысли. По двум точкам, КМК, лучшая - синяя, худшая -красная.
Железо есть, конечно. Со второго канала - есть катушка 0,27 мГн
+
 
Синяя - это щит параллельно короткой стене, но слегка повёрнут так, чтобы ось динамика стреляла к центру комнаты
Ага. А на диване лучше не смотрите. Вам бы уйти со средней линии по ширине, сместив АС №1 дальше от угла, в будущем.
 
По совету Александра - дал с генератора Спектралаба 100 Гц - и ухом поводил по комнате. Нашёл место возле микрофона, где на слух гудение меньше (место оказалось рядом - полметра дальше/вбок). Результат в новом месте (красным) по сравнению с предыдущим (синим). Уровни не менялись:
Посмотреть вложение 83678
Учти, что в стереорежиме моды перераспределятся иначе , суммарная ачх может выровняться, а может изуродоваться. Но эта точка прослушки заметно ровнее прочего кошмара.
 
Учти, что в стереорежиме моды перераспределятся иначе , суммарная ачх может выровняться, а может изуродоваться. Но эта точка прослушки заметно ровнее прочего кошмара.
Ровнее. А практически в ней слушать можно? Отметить кружочком на полу и выкатывать туда кресло?, как понимаю на проход.
Интересно, есть хотя бы теоретическая возможность сделать перестановку всего в этой комнате, но хоть как-то улучшить условия прослушивания?

У меня дома тоже маленькая КДП, всего 16 м2, но в ней по совету Николая сделана перестановка и АС расположены вдоль длиной стены. Изначально предполагалось иначе. Даже розетки на стенах теперь расположены неудобно, но так лучше. Комната похожа габаритами на Петину 3,2 х 5,0 м. Высота чуть более чем 2,8 м. Правда двери расположены лучше.
 
Последнее редактирование:
Как общая оценка звучания сейчас? Холодильник отключили, видно. Но на пик НЧ звена он не влияет, можете включать )))
По совету Александра - дал с генератора Спектралаба 100 Гц - и ухом поводил по комнате. Нашёл место возле микрофона, где на слух гудение меньше (место оказалось рядом - полметра дальше/вбок). Результат в новом месте (красным) по сравнению с предыдущим (синим). Уровни не менялись:
Посмотреть вложение 83678
К диссертации "О полезности умения пользоваться как ухами, так и микрофоном"! _plusuyu
Самому любопытно стало:
Посмотреть вложение 83682
90-70-45-20 (красный-малиновый-синий-зелёный соответственно). Где 90 - это щит параллельно длинной стене.
Обалдеть. Повороты на 7° на предыдущих рисунках по силе воздействия на АЧХ примерно равны поворотам на 20° на этом рисунке! Побеждает зелёный, возвращаемся к предыдущей паре картинок.
В голове держим: это только для моно (один канал), для одного расстояния от щита до стены (а можно - регулировать), только в двух точках.
Теперь знаем, что от теории до практики в щитах - как до Юпитера на геликоптере.
Однако, 90,70 и 45° выдули резонанс 270 Гц - откуда? Какие были расстояния от щита до стен в вариантах "параллельно короткой стене" и "параллельно длинной стене"?
Попробую вытянуть уровень прямой волны из усреднения по двум точкам.
7.png - гораздо приятнее и ближе к "было". Попробую чуть сдвинуть в сторону баса и поднять 4 кГц.
Сегодня в приоритете - поиграться с верхним стыком с 1 метра, он слабый.
 
Последнее редактирование:
Ровнее. А практически в ней слушать можно? Отметить кружочком на полу и выкатывать туда кресло?, как понимаю на проход.
Интересно, есть хотя бы теоретическая возможность сделать перестановку всего в этой комнате, но хоть как-то улучшить условия прослушивания?

У меня дома тоже маленькая КДП, всего 16 м2, но в ней по совету Николая сделана перестановка и АС расположены вдоль длиной стены. Изначально предполагалось иначе. Даже розетки на стенах теперь расположены неудобно, но так лучше. Комната похожа габаритами на Петину 3,2 х 5,0 м. Высота чуть более чем 2,8 м. Правда двери расположены лучше.
В свое время в одном известном салоне в их комнате прослушивания измерил " ачх дивана" , там чудовищный бубен в голову, резонансный , от стены напротив. На табуреточке , дальше на метр, все ровненько. Но желающих присесть на диван все равно больше . Хер с ним со звуком, если Мадам Сижу довольна.
 
Так если есть у людей аудиоувлечения, надо стараться удобство сидения с качеством слушания совмещать.
 
Однако, 90,70 и 45° выдули резонанс 270 Гц - откуда? Какие, были расстояния от щита до стен в вариантах "параллельно короткой стене" и "параллельно длинной стене"?
В варианте "параллельно короткой стене" и в варианте "параллельно длинной стене" - расстояние от центра динамика до стен было примерно одинаковым и составило: до короткой стены 0,5 м, до длинной стены 1 м.
Как общая оценка звучания сейчас?
Плохая. Звук замыленный, нет яркости и передачи эмоций. Исполнители - унылы, мрачны, уставшие.
Даже не знаю, на что грешить. Разве что - не подходящий тип конденсатора 100 мкФ?
1.jpg

2.jpg

Побеждает зелёный
это опять - вариант параллельно короткой стене, но динамик немного стреляет к центру комнаты
 
Последнее редактирование:
В варианте "параллельно короткой стене" и в варианте "параллельно длинной стене" - расстояние от центра динамика до стен было примерно одинаковым и составило: до короткой стены 0,5 м, до длинной стены 1 м.
ОК.
Плохая. Звук замыленный, нет яркости и передачи эмоций. Исполнители - унылы, мрачны, уставшие.
Даже не знаю, на что грешить. Разве что - не подходящий тип конденсатора 100 мкФ?
Вот этого я и боюсь. Конденсатор ни при чём, 95%. Причём - верхний стык, нагрузка 5ГД мидбасом.
Ещё Вы устаёте.
Делаю откат к меньшей режекции 300 Гц, большей отдаче НЧ на СЧ и поднимаю яму 3,5 кГц.
Опишите, какой вариант фильтра с 6ГД-1 пока зашел наилучше. Похоже, он - против выравнивания баланса завалом СЧ. Нам бы коррекцию НЧ по входу УМ, но - нет запаса ни по мощности 6ГД, ни по мощности SE, ни по входному уровню в УМ.
... Биамп с 6ГД-1?..
Пустить 6ГД-1 полкой -13дБ до 4 кГц, пусть снизу подпевает, плевать на интерференцию?
 
Последнее редактирование:
Опишите, какой вариант фильтра с 6ГД-1 пока зашел наилучше.
Из Ваших предложений - я успел пока собрать и послушать три варианта с 6ГД-1. Первый вариант с обычным фильтром и два варианта с последовательным фильтром (или как там правильно...). В общем, на эмоциональное восприятие лучше всего из этих трёх вариантов показался первый: https://ldsound.club/attachments/1-jpg.83267/
но там было два горба: https://ldsound.club/attachments/1-png.83269/
Пустить 6ГД-1 полкой -13дБ до 4 кГц, пусть снизу подпевает, плевать на интерференцию?
Типа того, как бы напрашивается (в памяти, как самый красивый вариант по звучанию). Вот эта АЧХ, только катушка 3 мГн, снят только 6ГД-1 с ней: https://ldsound.club/attachments/3-png.83047/
только надо как-то аккуратно подключить сюда СЧ/ВЧ секцию. Без неё - не вариант слушать (для меня). 6ГД-1 только лишь с пищалкой (как двухполоска) - не устроят меня (такие чувства)
... Биамп с 6ГД-1?..
вообще в голове не укладывается. Это - как бы логичнее для ЗЯ с Беймой - по моему пониманию. Предрассудки
 
Последнее редактирование:
Я с интересом наблюдаю за здесь происходящим.
У меня тоже есть некая проблема с басом, но по другой причине. И будет двухполосное усиление. Возможно добавится и ещё одна НЧ секция. Только я начинаю свои потуги с определения места размещения крупных предметов для того чтобы было комфортно жить и комфортно слушать.
В случае с системой Петра идёт дружная работа над АС установленными неудобно для прослушивания и при отсутствии места для самого прослушивания. Борьба эта тяжёлая, долгая и БЕСПОЛЕЗНАЯ. Это тупик.
Само помещение говорит о том, что надо менять концепцию построения аудиосистемы. Мысленно выкинуть всё нах... и подумать о том как правильно поступить с учётом ВСЕГО - особенностей помещения, желаемого размещения аудио и интересов семьи. Хорошая жена поймёт и учтёт интересы мужа. Надо остановиться и ПОДУМАТЬ. Лучше это сделать сейчас чем продолжать бестолково тратить время и силы.

Думаю Николай, понимающий особенности помещения сможет дать совет по размещению и габаритам АС, а Пётр понять насколько можно перекроить жизненное пространство в интересах хобби. Как-то так. Пётр, УСЛЫШЬТЕ меня!
 
Из Ваших предложений - я успел пока собрать и послушать три варианта с 6ГД-1. Первый вариант с обычным фильтром и два варианта с последовательным фильтром (или как там правильно...). В общем, на эмоциональное восприятие лучше всего из этих трёх вариантов показался первый: https://ldsound.club/attachments/1-jpg.83267/
но там было два горба: https://ldsound.club/attachments/1-png.83269/
Таким образом, последовательный фильтр - в пролёте? Знаете что попробуйте. Подставьте 7 Ом вместо НЧ динамика и послушайте пару сч/ВЧ на предмет унылости и усталости. Чтобы мы примерно поняли, какая часть партачит. Вдруг - я или Вы _hm_
Типа того, как бы напрашивается (в памяти, как самый красивый вариант по звучанию). Вот эта АЧХ, только катушка 3 мГн, снят только 6ГД-1 с ней: https://ldsound.club/attachments/3-png.83047/
только надо как-то аккуратно подключить сюда СЧ/ВЧ секцию. Без неё - не вариант слушать (для меня). 6ГД-1 только лишь с пищалкой (как двухполоска) - не устроят меня (такие чувства)
+
вообще в голове не укладывается. Это - как бы логичнее для ЗЯ с Беймой - по моему пониманию. Предрассудки
Логичнее всего - Бэйма в щите, с УМ на ИМС, с коррекцией перед ИМС, с поднятием НЧ. Ни стоячих волн, ни 300 Гц пика, ни ограничения по мощности, без ИМИ и КНИ. _pila
Или - Бэйма в виде сабвуфера ЗЯ в выбранном месте (пуфик 70 литров), щитки СЧ/ВЧ висят на стенах и играют почти в полную полосу, от 150 Гц, стреляя вдоль комнаты. Но будет изменяться отношение НЧ/остальное при приближении к сабу. Можно поставить ДВА пуфика, выровняв уровень НЧ по длине и по АЧХ во всей комнате...
 
Последнее редактирование:
+

Логичнее всего - Бэйма в щите, с УМ на ИМС, с коррекцией перед ИМС, с поднятием НЧ. Ни стоячих волн, ни 300 Гц пика, ни ограничения по мощности, без ИМИ и КНИ. _pila
Или - Бэйма в виде сабвуфера ЗЯ в выбранном месте (пуфик 70 литров), щитки СЧ/ВЧ висят на стенах и играют почти в полную полосу, от 150 Гц, стреляя вдоль комнаты. Но будет изменяться отношение НЧ/остальное при приближении к сабу. Можно поставить ДВА пуфика, выровняв уровень НЧ по длине и по АЧХ во всей комнате...
[/QUOTE]


Вот уже пошли хоть какие-то иные предложения.
Только Бейма в щите тоже тупик - щит не удобен по жизни.
Логичнее большие или средние полочники, типа как у АБ. И иное расположение всего, включая место прослушивания. Имеет смысл поменять концепцию, сделать и жить спокойно.
Николай, у Вас есть план комнаты. Предложите то, что не входит в сегодняшние планы, но может облегчить жизнь в будущем. Давайте пофантазируем.

Например, что будет при размещении АС (совершенно других) в небольшой части комнаты вдоль длинной стены между стеной с окном и проходом с дверями? АС, понятно, не в самом углу. Там получается расстояние от стены до стены напротив 3,3 м. Расстояние между АС примерно метра два. Так будет лучше?
Явным плюсом является наличие места для прослушивания не на проходе.
Как понимаю, столы и столики могут переместиться. Или весь аудиоогород может оказаться напротив дивана. Или ещё как.
Мы, понятно, не можем ничего переставить, но можем обоснованно предложить.
 
Главный ужас Петиного положения в том, что со времени нашей с ним настройки его 3-полоски комната переделана полностью, звучащее пространство ужалось до размера чулана. Ни о каких желанных 40 Герцах речи нет и не будет . Тут 80 герцам будешь рад ......:cry: Уж такой я пепсимист(((
 
+

Логичнее всего - Бэйма в щите, с УМ на ИМС, с коррекцией перед ИМС, с поднятием НЧ. Ни стоячих волн, ни 300 Гц пика, ни ограничения по мощности, без ИМИ и КНИ. _pila
Или - Бэйма в виде сабвуфера ЗЯ в выбранном месте (пуфик 70 литров), щитки СЧ/ВЧ висят на стенах и играют почти в полную полосу, от 150 Гц, стреляя вдоль комнаты. Но будет изменяться отношение НЧ/остальное при приближении к сабу. Можно поставить ДВА пуфика, выровняв уровень НЧ по длине и по АЧХ во всей комнате...


Вот уже пошли хоть какие-то иные предложения.
Только Бейма в щите тоже тупик - щит не удобен по жизни.
Логичнее большие или средние полочники, типа как у АБ. И иное расположение всего, включая место прослушивания. Имеет смысл поменять концепцию, сделать и жить спокойно.
Николай, у Вас есть план комнаты. Предложите то, что не входит в сегодняшние планы, но может облегчить жизнь в будущем. Давайте пофантазируем.

Например, что будет при размещении АС (совершенно других) в небольшой части комнаты вдоль длинной стены между стеной с окном и проходом с дверями? АС, понятно, не в самом углу. Там получается расстояние от стены до стены напротив 3,3 м. Расстояние между АС примерно метра два. Так будет лучше?
Явным плюсом является наличие места для прослушивания не на проходе.
Как понимаю, столы и столики могут переместиться. Или весь аудиоогород может оказаться напротив дивана. Или ещё как.
Мы, понятно, не можем ничего переставить, но можем обоснованно предложить.
[/QUOTE]
Бейма в щите- как сказал бы директор Брянской филармонии- это ни в какие ворота рамок. Скорректировать можно динамик с добротностью 0,5. А с честными Беймиными 0,25 в щите ей дорога на мусорку.
Правда, есть один выход. Лет через 15 дети подрастут, появится свободное время, сам дядя Пётр помудреет, перестанет страдать рок музыкой, найдет на авито пару Танноев Меркурей и успокоится.
 

Статистика форума

Темы
3,304
Сообщения
263,139
Пользователи
2,544
Новый пользователь
vlad'mir
Назад
Сверху Снизу