Ригонда 102

  • Автор темы Автор темы rngtng
  • Дата начала Дата начала

rngtng

1 ранг
Регистрация
9 Дек 2020
Сообщения
506
Реакции
145
Баллы
28
Страна
моя
Имя
rngtng
Не успел я нарадоваться на новый саундбар, как – бац – новая игрушка. Наводил порядок в гараже - притащил домой шасси от радиолы Ригонда 102, Думал, ну, разберу на молекулы. – хранилась 25 лет, так сказать ожидала она своего счастья. Ой, зачем я это сделал. :)
Корпус я давненько выкинул за ненадобностью – сильно огромная тумба, а шасси сохранил,
Воткнул новые лампы, включаю – работает, вот же гадость! Слушаю УКВ. И звук такой сладкий, так и слушал пару дней.
Но мысли-то шевелятся - а не измерить ли режимы унч?
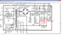
Измеряю режимы 6н2п – вижу сильно не те режимы, 60в анодное на 2м триоде, дело ясное, конденсаторы БМТ-2 0,01мкф и 0,047мкф с утечкой. Красным на схеме - режимы с текущими конденсаторами. Заменил на к42у2 и к40у-9 - номиналы указаны красным.
В результате режимы стали такие, как нарисованы в заводской схеме, и звук стал более чистым, а магия ушла, не совсем правда, пару капель радости мне все же осталось – селфсплиттер. Нагружал его на разные динамики, больше всего понравилось на 3х полосные телеки они же функены.
Что теперь с ним делать, ума не приложу, теперича разобрать рука не поднимется.

Может току добавить в 6н2п, чтоб запела?
унч Ригонда 102 мой.pngПеред.jpgСверху.jpg6BQ5 Matsushita.jpgEL84 RFT.jpgШкала.jpg
 
Последнее редактирование модератором:
Вместо 6н2п поставить 6н1п, R3=30-33ком, R10=30-33ком, R11=1ком
С4, С9=0,047-0,1мкф, можно к71-4, к71-7, к40у-9, к40п-2. к42у2 выкинуть, дерьмо.
 
Пацаном в гости к "дяденьке - радиолюбителю" ходил, слушал его ламповый усилитель нагруженный на 10АС..до сих пор помню..БониМ играл с катушечника ..ничего лучше я тогда не слышал.
Он покупал в магазине "Умелые руки" в Свердловске (пересечение Первомайская-Восточная") некондицию УНЧ от ламповых радиол и на их базе делал стереоусилитель. Помню на лампах были надеты "радиаторы из меди", как он говорил "мое изобретение - в полтора раза мощность выходную увеличил.."
Вот зрительно вроде такие же УНЧ как у этой Ригонды...Что то заностальгировалось.. :)
 
В тот ЮТ, Юный техник, по-моему звали, часто ходил, от УПИ недалеко, где учился. А первой зарплаты купил 2 шт 10мас-1 по 35 руб, полностью рабочие
 
Да, возможно, и Юный Техник :)..фольгированный стеклотекстолит там обрезь брал..детали редко. Детали обычно с Кировграда были..
 
Не успел я нарадоваться на новый саундбар, как – бац – новая игрушка. Наводил порядок в гараже - притащил домой шасси от радиолы Ригонда 102, Думал, ну, разберу на молекулы. – хранилась 25 лет, так сказать ожидала она своего счастья. Ой, зачем я это сделал. :)
Корпус я давненько выкинул за ненадобностью – сильно огромная тумба, а шасси сохранил,
Воткнул новые лампы, включаю – работает, вот же гадость! Слушаю УКВ. И звук такой сладкий, так и слушал пару дней.
Но мысли-то шевелятся - а не измерить ли режимы унч?
Измеряю режимы 6н2п – вижу сильно не те режимы, 60в анодное на 2м триоде, дело ясное, конденсаторы БМТ-2 0,01мкф и 0,047мкф с утечкой. Красным на схеме - режимы с текущими конденсаторами. Заменил на к42у2 и к40у-9 - номиналы указаны красным.
В результате режимы стали такие, как нарисованы в заводской схеме, и звук стал более чистым, а магия ушла, не совсем правда, пару капель радости мне все же осталось – селфсплиттер. Нагружал его на разные динамики, больше всего понравилось на 3х полосные телеки они же функены.
Что теперь с ним делать, ума не приложу, теперича разобрать рука не поднимется.

Может току добавить в 6н2п, чтоб запела?
Обратно надо БМТ воткнуть севшие,магия звука вернётся) Я поэтому и не лезу в 044,так как звук нравится.Заменю севшие,изменится звук и не факт ,что в лучшую сторону.
Но менять большие придётся всё равно,один канал после прогрева и под нагрузкой похрипывать начинает.ладно,разберусь.
 
Знаем, ездили... Долго мешались неполные 2-х или 3-литровые банки с кт315 и кт361 немаркированные, отдал пионерам в кружок

БМТ - смерть поэта!
 

Вложения

  • IMG_20211102_200529_1.jpg
    IMG_20211102_200529_1.jpg
    353.1 KB · Просмотры: 391
  • IMG_20210424_125321_1.jpg
    IMG_20210424_125321_1.jpg
    564.8 KB · Просмотры: 443
Продолжение истории.
При включении УНЧ возбуждается - секунд 5 писк примерно 1 кгц, при выключении аналогично. Если отключить динамики при включении тоже пищит - выходной трансформатор. Если выключить и снова включить - писк отсутствует.
6н2п-ев и 6н2п.jpg
Продолжение.
Сегодня заменил 6н2п на 6н2п-ев. Обе NOS 1974г. калужский завод "Восход". Пропали шуршунчики при нулевой громкости, эта лампа шумела. Режимы лампы остались заводские. 6н1п решил не ставить, у нее усиление в три раза меньше, громкости не хватит.
Возбуд при включении остался.

Продолжение.
Выяснил, что при включении-выключении унч возбуждается только при подключенной 3х полосной акустике. при подключении динамика без кроссовера самовозбуждение отсутствует. Похоже сильно накрученный кроссовер каким-то образом влияет на унч.
 
Последнее редактирование модератором:
Продолжение.
Выяснил, что при включении-выключении унч возбуждается только при подключенной 3х полосной акустике. при подключении динамика без кроссовера самовозбуждение отсутствует. Похоже сильно накрученный кроссовер каким-то образом влияет на унч.
Пищит не нагруженный унч. У кроссовера часто максимум импеданса на СЧ, типа ток мизерный. Без нагрузки растет коэффициент усиления, а где-то есть ПОС. Усиление максимально тоже на СЧ, вот и свистит.ПОС надо искать. Пропадающую при прогреве. Лампы прогреваются не синхронно, мож фокус здесь.
 
Последнее редактирование:
Пищит не нагруженный унч. У кроссовера часто максимум импеданса на СЧ, типа ток мизерный. Без нагрузки растет коэффициент усиления, а где-то есть ПОС. Усиление максимально тоже на СЧ, вот и свистит.ПОС надо искать. Пропадающую при прогреве. Лампы прогреваются не синхронно, мож фокус здесь.
И трансформатор тоже пищит, довольно громко. Может в нём дело?
 
Рано утром, спозаранку, я



Рано утром, спозаранку, я кручу, верчу баранку победил возбуд при включении - завязывалось через накал 6н2п, который зачем-то привязали к анодному. Добавил конденсатор 10мкф параллельно R5 в блоке питания и всё прошло.
 

Вложения

  • Ригонда БП.png
    Ригонда БП.png
    96.6 KB · Просмотры: 1,392
Последнее редактирование:
Рано утром, спозаранку, я



Рано утром, спозаранку, я кручу, кручу баранку победил возбуд при включении - завязывалось через накал 6н2п, который зачем-то привязали к анодному. Добавил конденсатор 10мкф параллельно R5 в блоке питания и всё прошло.
Насколько С4 должен быть сухой, чтобы не развязывать на килогерцах?
 
Самое простое, по схеме Симфонии, rngtng все еще злиться...
 
Сегодня, ради интереса, заменил в пч лампу 6к4п-ев на 6ba6 Matsushita. Matsushita чуть меньше по высоте, но исполняет честно.
Да, и сегодня опять свистит при включении.
6ba6 и 6к4п-ев.jpg

Продолжая поиски отсутствия наличия самовозбуждения унч, я попытался заблокировать все три анодных питания унч пленочными конденсаторами 0,1 мкф, припаивая их прямо к плате унч. Не помогло. И тут пришло прозрение - а не поменять ли местами выходные лампы? И, как уже вы догадались, самовозбуждение (писк) при включении и выключении исчезло.
Лампы у меня разные, однако новые и "однотипные":) - 6bq5 от Matsushita и EL84 Funkwerk Erfurt. Вот так просто ларчик открывался.

Оказывается проблема со свистом у этой модели системная.
 
Последнее редактирование модератором:
Оказывается проблема со свистом у этой модели системная.
Может быть,надо все контакты почистить окисленные там за 50лет? И в разъёмах и на лампах?
 
Контакты на лампах не ржавеют. :) Скорее всего у человека непропай одной из ножек панельки. с дорожкой платы.
 
Последнее редактирование:
Вторая серия. Содержание первой серии – выше.

Как известно, деньги притягивают деньги, а значит и Ригонды притягивают Ригонды. Таков закон всемирного притяжения Ригонд.:)
Стоило только подумать, что неплохо было б найти корпус для имеющейся у меня полуригонды, как мысль тут же материализовалась в виде еще одной Ригонды 102. Корпус со следами времени, внутри все детали в наличии, и даже включается и работает. Потенциометры конечно же трещат и пыль внутри, но на УКВ и СВ принимает. Но, самое удивительное, что все 3 лампочки подсветки шкалы светят и, можно даже сказать, греют, если и не тело, то душу.
И ещё имеются ножки, четыре штуки, «у кошки - четыре ноги, а еще у неё – длинный хвост». Вместо хвоста у нашей Ригонды - ЭПУ с отломанным и висящим на проводах тонармом, и вырванным роликом. Ролик в идеальном состоянии – видимо в работе не был. Только эта часть нас не интересует.
Теперь возникает вопрос: - а что теперь с этим "богатством" делать?
Предполагаемые варианты:
1. Выкрасить и выбросить. в белый цвет и отполировать. Почему белый? Ведь "мальчик хотел цвета бордо":)
Чем лучше красить и полировать – советы принимаются от опытных мастеров.
2. Зашпаклевать выбоины на полировке и покрыть лаком заново, ибо следы времени раздражают. Колер оставить оригинальным. Опять же советы по использованию материалов.
3. Вырвать зверским образом унч от одного из шасси разместить в корпусе ригонды внизу, там где динамики и пере-коммутировать их на получившийся стерео унч.
4. Сделать из корпуса ригондо-бар - внутренности выкинуть.

В качестве лирического отступления: - предложили в подарок горы винила, я, конечно, отказался, и его немедленно вынесли на помойку, на радость бомжам. Значит в выходные «радость» всплывёт на местной барахолке, привлекая покупателей помойным амбре.
 
Контакты на лампах не ржавеют. :) Скорее всего у человека непропай одной из ножек панельки. с дорожкой платы.
Да я не про ржавчину.Бывает что серебряное покрытие становится сильно чёрным,оксидированным,особенно в местах нагрева.

Предполагаемые варианты:
1. Выкрасить и выбросить. в белый цвет и отполировать. Почему белый? Ведь "мальчик хотел цвета бордо":)
Чем лучше красить и полировать – советы принимаются от опытных мастеров.
2. Зашпаклевать выбоины на полировке и покрыть лаком заново, ибо следы времени раздражают. Колер оставить оригинальным. Опять же советы по использованию материалов.
Зашпаклевать выбоины,если они до мяса.Но если просто сколы и замятины,попробовать чуть прокапать ацетоном или растворителем,могут паутинки исчезнуть.Пробовать на неприметных местах.
В любом случае там полиэфирный лак и он просто так не сшлифуется)
Можно полировать как обычно,если не всё зацарапано.Войлочными кругами с полировальной пастой различных значений.От крупной к мелкой.Если всё в царапинах,сначала так же наждачкой разных номеров зашлифовать.Но этот лак очень капризный и неудобный в работе.Проще как я сделать,вскрыть его ацетоном и покрыть акриловым или алкидным лаком.Лучше из краскопульта или баллона ,так будет ровнее,кисть будет заметна.
 
Вторая серия. Содержание первой серии – выше.

Как известно, деньги притягивают деньги, а значит и Ригонды притягивают Ригонды. Таков закон всемирного притяжения Ригонд.:)
Стоило только подумать, что неплохо было б найти корпус для имеющейся у меня полуригонды, как мысль тут же материализовалась в виде еще одной Ригонды 102. Корпус со следами времени, внутри все детали в наличии, и даже включается и работает. Потенциометры конечно же трещат и пыль внутри, но на УКВ и СВ принимает. Но, самое удивительное, что все 3 лампочки подсветки шкалы светят и, можно даже сказать, греют, если и не тело, то душу.
И ещё имеются ножки, четыре штуки, «у кошки - четыре ноги, а еще у неё – длинный хвост». Вместо хвоста у нашей Ригонды - ЭПУ с отломанным и висящим на проводах тонармом, и вырванным роликом. Ролик в идеальном состоянии – видимо в работе не был. Только эта часть нас не интересует.
Теперь возникает вопрос: - а что теперь с этим "богатством" делать?
Предполагаемые варианты:
1. Выкрасить и выбросить. в белый цвет и отполировать. Почему белый? Ведь "мальчик хотел цвета бордо":)
Чем лучше красить и полировать – советы принимаются от опытных мастеров.
2. Зашпаклевать выбоины на полировке и покрыть лаком заново, ибо следы времени раздражают. Колер оставить оригинальным. Опять же советы по использованию материалов.
3. Вырвать зверским образом унч от одного из шасси разместить в корпусе ригонды внизу, там где динамики и пере-коммутировать их на получившийся стерео унч.
4. Сделать из корпуса ригондо-бар - внутренности выкинуть.

В качестве лирического отступления: - предложили в подарок горы винила, я, конечно, отказался, и его немедленно вынесли на помойку, на радость бомжам. Значит в выходные «радость» всплывёт на местной барахолке, привлекая покупателей помойным амбре.
Выбросить...Да вы чо? Сегодня в каждом сериале на заднем плане в комнате можно увидеть эту Ригонду, особенно часто в фильмах про советские времена. А вы - выбросить...Озверели ...
 
Выбросить...Да вы чо? Сегодня в каждом сериале на заднем плане в комнате можно увидеть эту Ригонду, особенно часто в фильмах про советские времена. А вы - выбросить...Озверели ...
Так они одну и туже таскают по всем площадкам.Дюже много места занимает,что бы несколько хранить)
Этих Ригонд наштамповали миллионами.Чуть ли не в каждой семье были.Как фотоаппарат Зенит Е.
 
Так они одну и туже таскают по всем площадкам.Дюже много места занимает,что бы несколько хранить)
Этих Ригонд наштамповали миллионами.Чуть ли не в каждой семье были.Как фотоаппарат Зенит Е.
Ну не скажите. Купить такую радиолу прям сразу- зарплата не позволяла, к тому же не продавались они запросто, искать нужно было, по знакомым в магазинах.
Гляньте цену на крышке сзади. Небось, рубликов 270_280, при зарплате 100-120?
 
Ну не скажите. Купить такую радиолу прям сразу- зарплата не позволяла, к тому же не продавались они запросто, искать нужно было, по знакомым в магазинах.
Гляньте цену на крышке сзади. Небось, рубликов 270_280, при зарплате 100-120?
У меня нету, сейчас только Вега 312) Была когда то, в детстве и потом когда в новый дом переехали,ещё одну отдали,тоже какое то время прослужила.
120-130,это инженеры начинающие столько получали,а граждане с рабочими специальностями с одной зарплаты могли купить пару,а то и тройку...
 
У меня нету, сейчас только Вега 312) Была когда то, в детстве и потом когда в новый дом переехали,ещё одну отдали,тоже какое то время прослужила.
120-130,это инженеры начинающие столько получали,а граждане с рабочими специальностями с одной зарплаты могли купить пару,а то и тройку...
Ой-ой....С рабочими специальностями... Сам на заводе проработал слесарем КИП, самая рабочая, рабочее не бывает , как пришел на 143р , так и ушел с той же зп. И это с кучей надбавок.
 
У меня Зенит-3М, тоже неплохо
 
Ну не скажите. Купить такую радиолу прям сразу- зарплата не позволяла, к тому же не продавались они запросто, искать нужно было, по знакомым в магазинах.
Гляньте цену на крышке сзади. Небось, рубликов 270_280, при зарплате 100-120?
Вещь ценою 150 руб. была доступна любой советской семье. Цена указана на задней крышке. Тираж радиолы 1,5 млн. штук. У нас в магазинах присутствовала в свободной продаже.

Да я не про ржавчину.Бывает что серебряное покрытие становится сильно чёрным,оксидированным,особенно в местах нагрева.
Эта чёрная окись серебра замечательно проводит ток и на звук не влияет, проверено лично на кабелях AudioNote.
 
Последнее редактирование:
Вещь ценою 150 руб. (так на задней крышке напечатано) была доступна любой советской семье. Тираж 1,5 млн. штук. У нас в магазинах присутствовала в свободной продаже.
150 р тратились на жизнь до последней копеечки, традицией было занять трояк до получки. Поэтому ахнуть получку на радиолу- это кем надо быть ?
Можно подумать, вы сегодня живете иначе.
 

Статистика форума

Темы
3,311
Сообщения
264,289
Пользователи
2,550
Новый пользователь
Александр Н.
Назад
Сверху Снизу